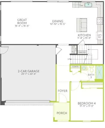
4 Beds
3 Baths
2,206 SqFt
4 Beds
3 Baths
2,206 SqFt
Key Details
Property Type Single Family Home
Sub Type Single Family Home
Listing Status Pending
Purchase Type For Sale
Square Footage 2,206 sqft
Price per Sqft $367
MLS Listing ID ML82002371
Bedrooms 4
Full Baths 3
HOA Fees $105/mo
HOA Y/N 1
Year Built 2025
Lot Size 6,820 Sqft
Property Sub-Type Single Family Home
Property Description
Location
State CA
County Solano
Building/Complex Name Cascade at Waterstone
Zoning r-1
Rooms
Family Room Kitchen / Family Room Combo
Dining Room Breakfast Bar, Dining Area
Kitchen Cooktop - Gas, Countertop - Quartz, Island, Microwave, Oven - Built-In
Interior
Heating Central Forced Air
Cooling Central AC
Flooring Carpet, Tile, Vinyl / Linoleum
Laundry Electricity Hookup (220V), Inside
Exterior
Exterior Feature Back Yard, Fenced
Parking Features Attached Garage
Garage Spaces 2.0
Fence Wood
Community Features None
Utilities Available Individual Electric Meters, Individual Gas Meters, Solar Panels - Leased, Solar Panels - Owned
View Neighborhood
Roof Type Concrete,Tile
Building
Faces Northeast
Story 2
Foundation Concrete Slab
Sewer Sewer - Public
Water Public
Level or Stories 2
Others
HOA Fee Include Landscaping / Gardening,Maintenance - Common Area
Restrictions Pets - Allowed
Tax ID 0082504020C
Miscellaneous Walk-in Closet
Security Features Fire System - Sprinkler
Horse Property No
Special Listing Condition New Subdivision

GET MORE INFORMATION
Agent | Lic# CalBRE: 01336392



